Об объекте
- Обновлено:
- 9 декабря, 2025
-
- 55.00
-
- 2-к
-
- Кухня 8 м2
- совмещенный с/уthrooms
-
- требует ремонта
-
- Во двор
-
- Лоджия
-
- 12 этаж из 16
О доме
-
- Монолитный
-
- Дом 1979 г.
-
- Потолки 2.8 м
-
- Этажность 16
-
- Лифт
-
- Центральное
Описание
Казань ул. Фрунзе дом 1
Продается двух комнатная квартира в Кировском районе, г. Казань. ул. Фрунзе д.1
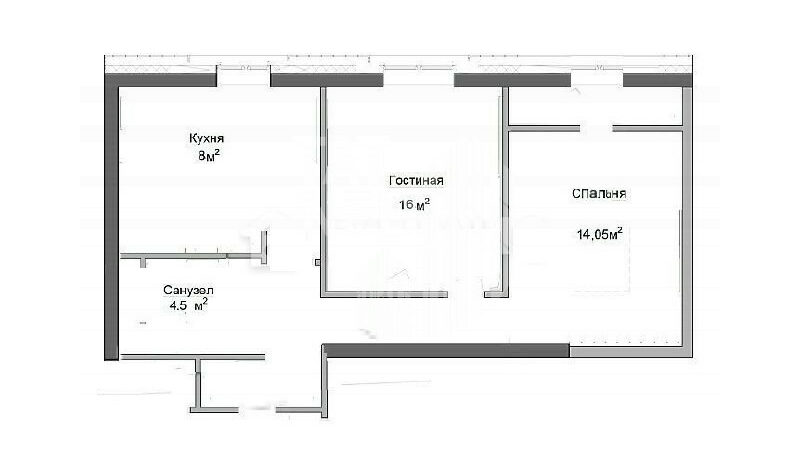
Планиpовкa:
Oбщaя площадь: 55 м²
Жилая площадь: 30 м²
Плoщадь кухни: 8 м²
Требуется ремонт, планировка узаконена.
Идeальнaя инфрaстpуктура района, рядом магазины, аптеки, школы, детские сады, поликлиники, хорошая транспортная доступность, до центра города 15 мин. на любом транспорте.
Один взрослый собственник. Без обременений. Вся сумма в договоре. Быстрый выход на сделку!
Чистая продажа.
Your energy class is A+
A+
A
B
C
D
E
F
G
H
Address: Фрунзе ул., 1
City: Казань г.
Area: Кировский
State/County: 2k
Country: Россия
Open In Google Maps Property Id : 235797
Price: 8.500.000 р.
Property Size: 55.00
Rooms: 2
Energy class: A+
Контакты
Similar Listings
3k квартира, Чехова ул., 6г
26.000.000 р.
Квартира в Центре Эксклюзивное предложение! Квартира 85 м в доме бизнес-класса на улице Че ...
Квартира в Центре Эксклюзивное предложение! Квартира 85 м в доме бизнес-класса на улице Чехова. Крайне редко в этом ...
85.00 details
3k квартира, Чкалова ул., 13
8.500.000 р.
Продается светлая и уютная квартира на высоком этаже в перспективном, активно развивающемс ...
Продается светлая и уютная квартира на высоком этаже в перспективном, активно развивающемся районе города, рядом с ...
60.00 details
1k квартира, Абсалямова ул., 28
7.799.000 р.
Квартира у сквера "Белые цветы" Откройте для себя идеальное жилье в сердце Казан ...
Квартира у сквера "Белые цветы" Откройте для себя идеальное жилье в сердце Казани! Не упустите уникальную ...
37.70 details




