Об объекте
- Обновлено:
- 16 ноября, 2025
-
- 141.00
-
- 3-к
-
- косметический
О доме
-
- Кирпичный
-
- Этажность 1
-
- Котел газ
Описание
дом 141м² 10сот Травкино Вилладж
Продается уютный дом 141 м² в предчистовой отделке на просторном участке 10 соток в живописном поселке Травкино Вилладж!
Почему стоит выбрать именно этот дом?
• Качество строительства: Наш дом возведен из высококачественных материалов с соблюдением всех стандартов СНиП и ГОСТ. Убедитесь в надежности и долговечности — приезжайте на просмотр!
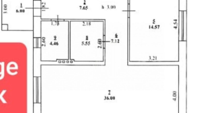
• Удобная планировка: просторная кухня-гостиная, прихожая, холл, санузел, 3 светлые спальни, котельная, уютная терраса для вечерних посиделок и крыльцо для встреч с друзьями, крыльцо.
О поселке:
Травкино Вилладж — это идеальное место для жизни вдали от городской суеты.
Рядом: Сокуры, Травкино, Никольское, Столбище, Большие Кабаны, Малые Кабаны, Сопуголи.
• Коммуникации: Газ, электричество, дороги.
• Развита инфраструктура: Школы и детские сады, детские площадки, магазины, аптека, строительные магазины, фельдшерский пункт, дом культуры, парковые зоны для прогулок с семьей и друзьями.
Стоимость дома: Указана цена за дом в предчистовой отделке с участком и подключенными коммуникациями.
Ипотека: Мы поможем вам подобрать оптимальные условия по ипотеке, проходит семейная и АйТи ипотека.
Запишитесь на просмотр!
Мы приглашаем вас на экскурсию по дому, расскажем о каждом этапе строительства и поможем рассчитать платежи по ипотеке.
Не упустите возможность! Добавьте объявление в избранное, чтобы не потерять шанс на покупку вашего нового дома!
A
B
C
D
E
F
G
H














