Об объекте
- Обновлено:
- 11 февраля, 2026
-
- 104.10
-
- 3-к
-
- требует ремонта
О доме
-
- Кирпичный
-
- Этажность 1
-
- Котел газ
Описание
В продаже основательный, добротный дом площадью 104,1 кв.м. в качественной предчистовой отделке!
Дом располагается на ровном земельном участке прямоугольной формы площадью 6,3 соток в живописнейшем месте, идеальном для проживания и отдыха от городской суеты – п. Урмай Никольского сельского поселения Лаишевского района.
Зонирование от основной дороги хвойной лесополосой! Рядом въезд и выезд с платной трассы. На данный момент идет расширение дорожного полотна в связи с улучшением инфраструктуры зоны Аэропорта.
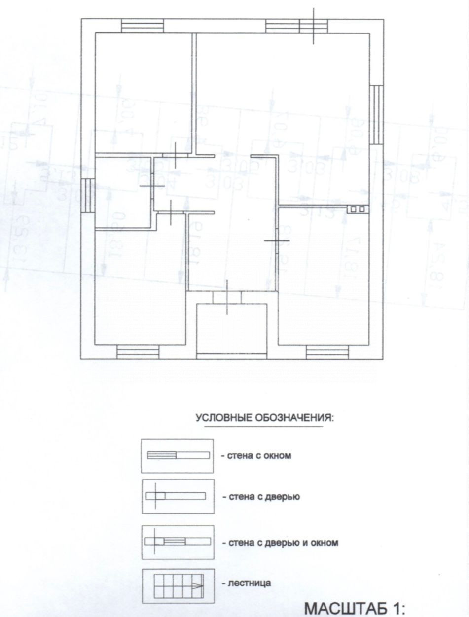
Дом имеет продуманную и эргономичную планировку, которая включает в себя: входную группу, просторную кухню-гостиную с выходом на террасу, 3 жилые комнаты, большой санузел. За счет высоты потолков (3 м.) в доме много света и воздуха.
Строительство осуществляли для себя, используя современные материалы с соблюдением всех технологий:
- Фундамент – из буроналивных свай с ростверком глубиной 2,5 м.
- Стены – из керамических блоков с облицовкой из керамического кирпича, утеплителя 10 см каменной негорючей ваты производства Технониколь, 12 см облицовочного кирпича. Общая ширина стены 52 см.
- Полы – плиты перекрытия
- Окна марки Rexay заводские (тройной стеклопакет, пятикамерный профиль, энергосберегающий стеклопакет)
- Отопление и горячее водоснабжение обеспечивает двухконтурный газовый котел Baxy (Италия) на 24 кВт
- Канализация – септик на три кольца
- На 1 этаже везде установлены теплые полы
- Крыша дома выполнена с использованием металлочерепицы и утеплением потолка 20 см утеплителем Knauf
- Все коммуникации (газ, электричество, вода (скважина)) проведены
Земельный участок с достаточной площадью для ведения приусадебного хозяйства, строительства гаража, бани, беседки, зоны барбекю.
В непосредственной близости школа, детский сад, остановка общественного транспорта, продуктовый магазин. В ближайшей перспективе планируется строительство собственного детского сада, парковки со шлагбаумом и охраной!
Преимуществом расположения является прекрасная локация – село идеально вписано в природное окружение и располагает благоприятными условиями для спокойной семейной жизни и отдыха; в 15 минутах езды от РКБ в направлении по Оренбургскому тракту и автодороге Столбище-Атабаево. Из Казани можно добраться на автобусе от автовокзала Южный до села Сапуголи.
Важно:
- 1 взрослый собственник
- удобные подъездные пути
- оперативный показ
Рядом поселки: Усады, Столбище, Кабаны, Габишево, Песчаные Ковали.
A
B
C
D
E
F
G
H









