Об объекте
- Обновлено:
- 11 ноября, 2025
-
- 117.00
-
- 3-к
-
- косметический
О доме
-
- Кирпичный
-
- Этажность 1
-
- Котел газ
Описание
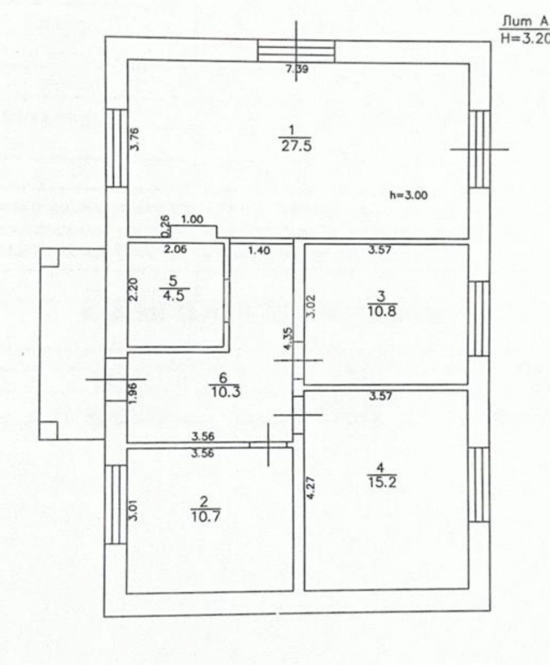
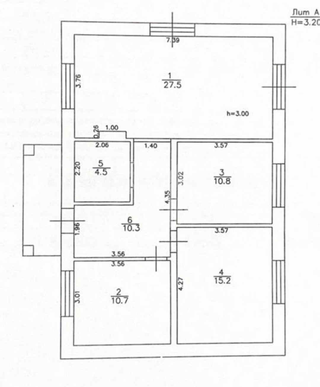
дом117м² , Новые Сокуры
Продается дом 117м² в Новых Сокурах. Отделка будет доведена до предчистовой.
Почему стоит выбрать именно этот дом?
• Качество строительства: Наш дом возведен из высококачественных материалов с соблюдением всех стандартов СНиП и ГОСТ.
Убедитесь в надежности и долговечности — приезжайте на просмотр!
• Удобная планировка
Близоcть к гopoду, вceго 15-20 минут и Вы в Казaни.
Рядом: Новые Сокуры, Травкино, Никольское, Столбище, Большие Кабаны, Малые Кабаны, Сапуголи.
• Развита инфраструктура: новый детский центр, школы и детские сады, детские площадки, мечеть, магазины, аптека, строительные магазины, фельдшерский пункт, дом культуры, парковые зоны для прогулок с семьей и друзьями.
Стоимость дома: Указана цена за дом в чер отделке
Ипотека: Мы поможем вам подобрать оптимальные условия по ипотеке, проходит семейная и АйТи ипотека.
Запишитесь на просмотр!
Мы приглашаем вас на экскурсию по дому, расскажем о каждом этапе строительства и поможем рассчитать платежи по ипотеке.
Не упустите возможность! Добавьте объявление в избранное, чтобы не потерять шанс на покупку вашего нового дома!
Также в продаже есть много других вариантов во всех направлениях города. Звоните!
A
B
C
D
E
F
G
H




