Об объекте
- Обновлено:
- 25 апреля, 2026
-
- 124.00
-
- 3-к
- раздельный с/уthrooms
-
- требует ремонта
О доме
-
- Кирпичный
-
- Этажность 1
-
- Котел газ
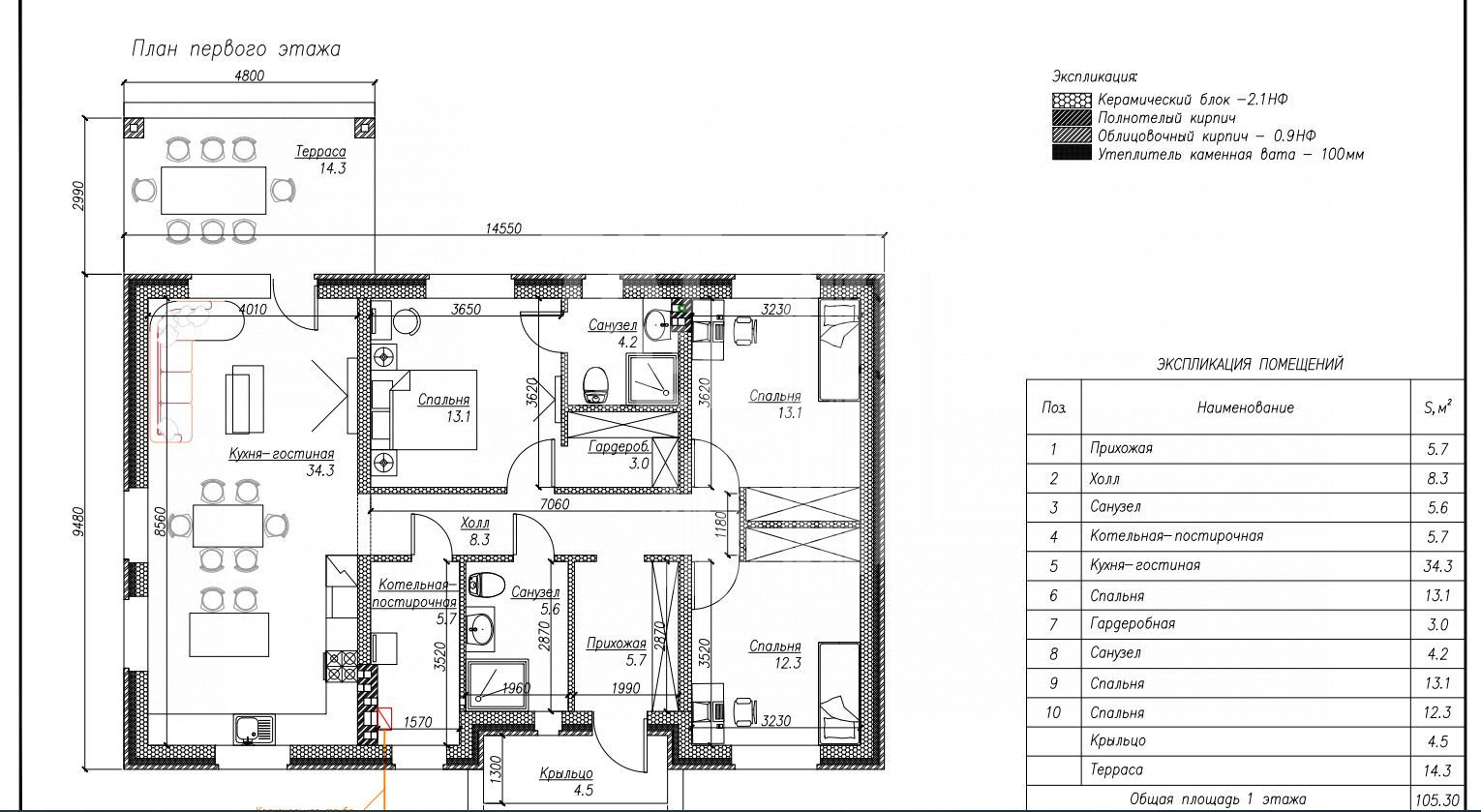
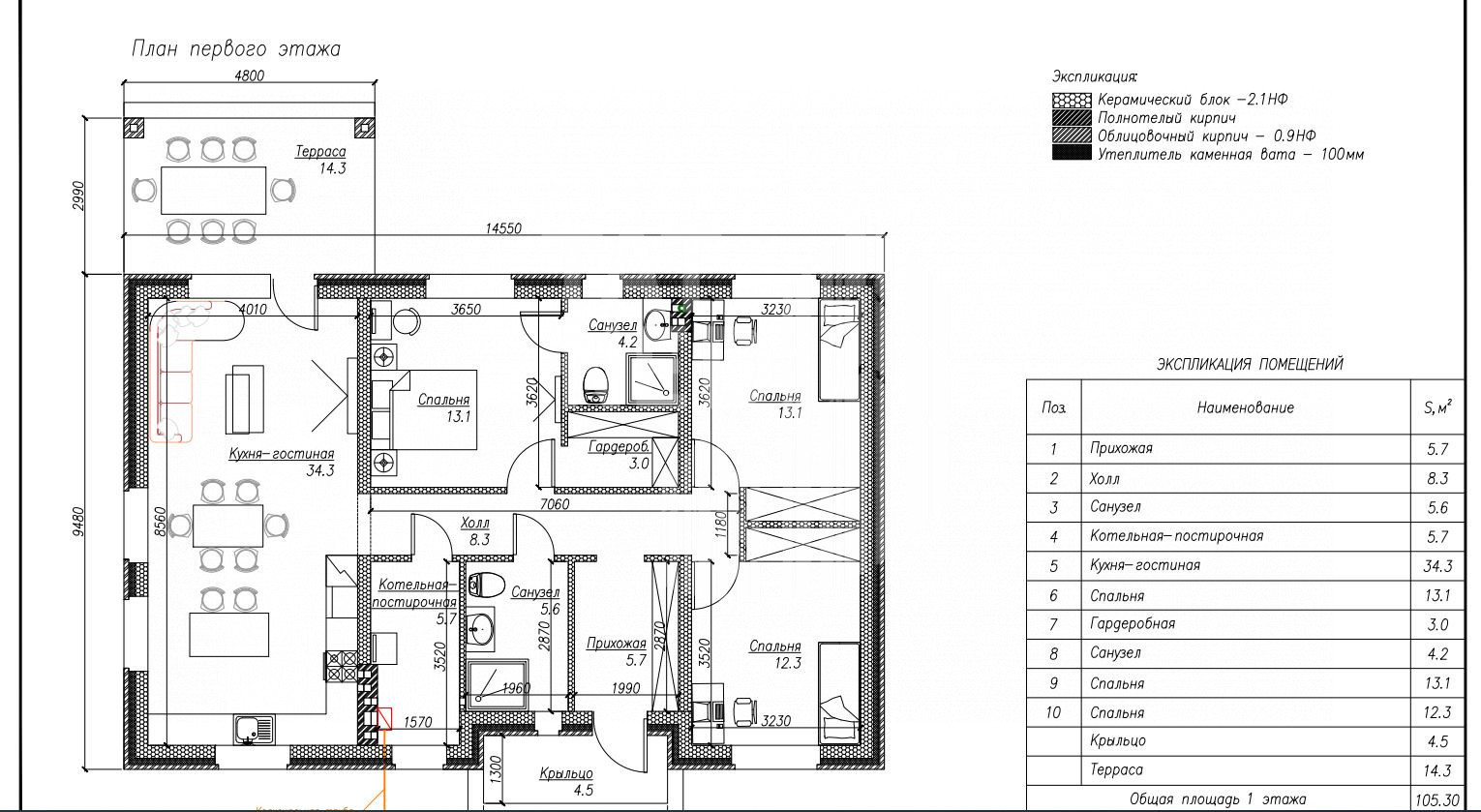
Описание
Дом на прямую от ЗАСТРОЙЩИКА. Цена дома указана с учетом участка.
Представляю вашему вниманию светлый, очень уютный, теплый дом в предчистовой отделке. Газ, вода, электричество, септик подведены к дому. Также есть террасса. Планировка дома очень комфортабельна для жизни.
В доме расположены: крыльцо, входная группа, холл,санузел, котельная-гостирочная, кухня-гостиная, 3 спальни, гардеробная, терраса. Общая площадь дома 105,3 квм. С учетом террасы 124,10 кв м.
Дoм находится у леса. Пешей доступности река Кама (река Мeша впадает в Kаму). Экологически живописное место для жизни. Здесь можно отлично проводить время катаясь по красивейшим местам на велосипедах, квадрациклах, снегоходах и катерах. Здесь отличная рыбалка.
Не упустите возможность стать обладателем этого дома, который станет идеальным местом для вашей семьи или для начала новой жизни.
Добавьте объявление в избранное, чтобы сохранить это счастье))).
Бесплатное одобрение ипотеки.
Подходит по программам: семейная ипотека, сельская, Гос поддержка.
A
B
C
D
E
F
G
H




