Об объекте
- Обновлено:
- 7 ноября, 2025
-
- 402.70
-
- 6-к
- раздельный с/уthrooms
-
- дизайнерский
О доме
-
- Кирпичный
-
- Дом 2020 г.
-
- Потолки 3.5 м
-
- Этажность 3
-
- Котел газ
Описание
пос.Габишево, 1я линия от оз.Моховое, далее хвойный лес
Отличный видовые характеристики
Береговая д.27
Участок 13.1 сот.
Дом 402 м (цокольный + 2 этажа)
О доме:
Строили для себя (это видно и по фасадным решениям и по планировке помещений). Почти завершенный чистовой ремонт (кухонный гарнитур, напольные покрытия, плитка в сан.узлах…)
Подробнее можно увидеть в прикрепленном видеообзоре, а также на живом показе.
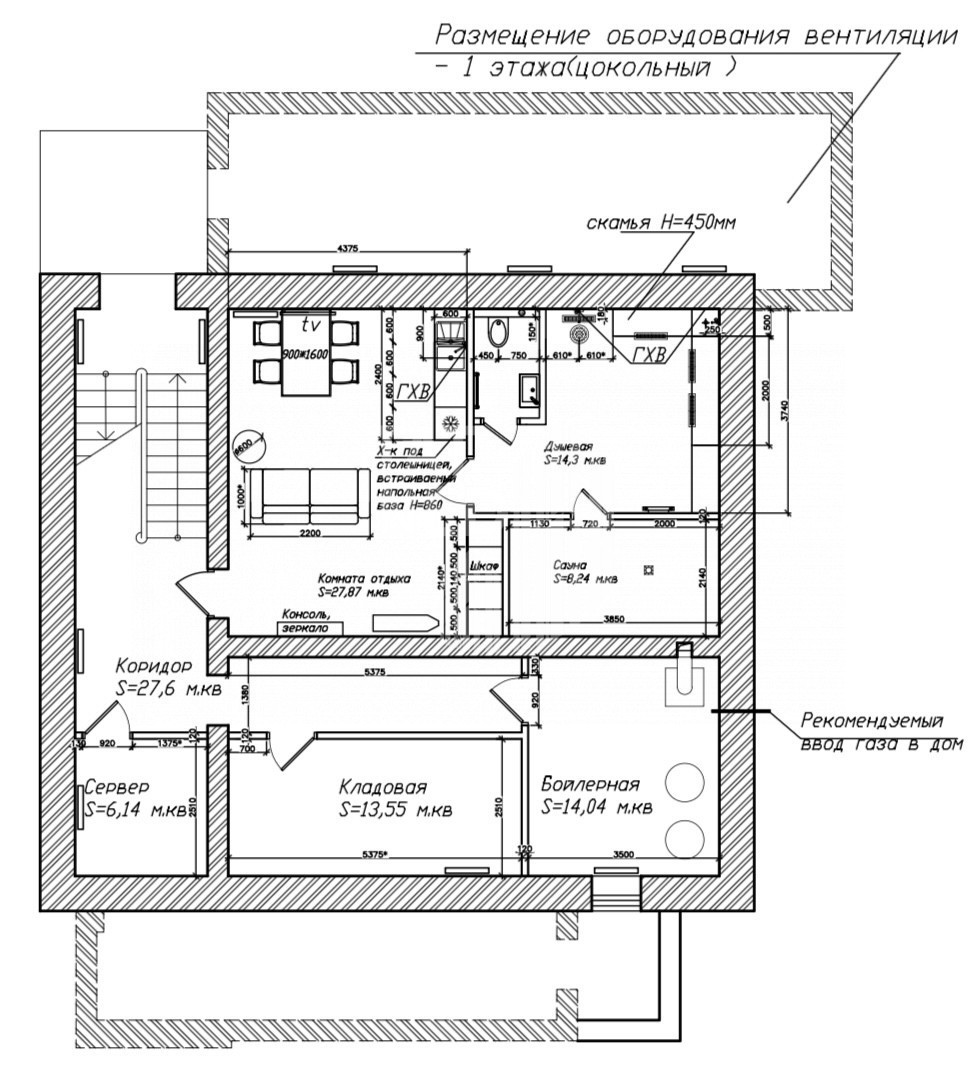
СПА-зона и иные технические помещения расположена в цокольной части.
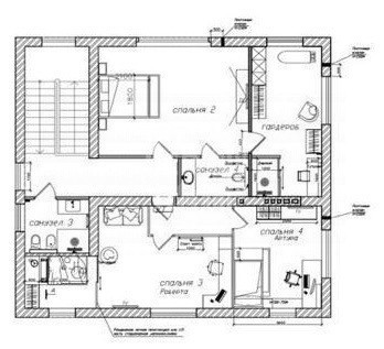
Общественно-гостевые комнаты на 1м этаже.
И уже спальные комнаты (приватные зоны) разместились на 2 этаже дома.
О поселке:
полная соц.инфраструктура, асфальтированные дороги, красивые ландшафты
Как приобрести:
- можем рассмотреть различные способы оплаты,
- обмен на другую недвижмиость (коммерческая, жилая)
- обсудить рассрочку
Как посмотреть:
Напишите либо позвоните и выберем удобный день
С уважением, Максим Гараев
эксперт по загородной недвижимости
A
B
C
D
E
F
G
H




