Об объекте
- Обновлено:
- 21 января, 2026
-
- 324.40
- 5 с/уthrooms
-
- дизайнерский
-
- 1 этаж из 10
О доме
-
- Кирпичный
-
- Дом 2004 г.
-
- Потолки 4 м
-
- Этажность 10
-
- Паркинг
-
- Центральное
Описание
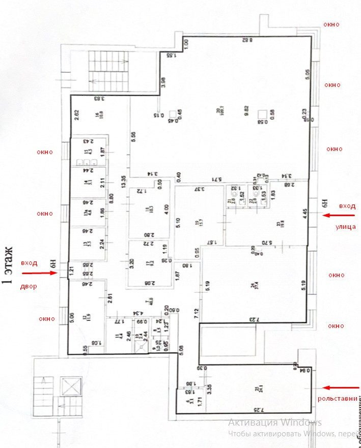
Вашему вниманию предлагается помещение в Ново-Савиновском районе, ул. Чистопольская 20а, с выходом на сквер Стамбул
В помещении сделан дизайнерский ремонт.
Преимущества помещения:
- 1 этаж
- Доступ 24/7
- 3-и входные группы (улица, двор и рольставни для выгрузки товара)
- потолки 4 метра
- Большое количество окон, панорамное остекление
- Место под вывеску
- Хорошая мощность кВт
- подходит под общепит, медицинская сфера деятельности, офис, шоу рум и прочий бизнес
Есть ВИДЕООБЗОР, звоните пишите, просмотр по договорённости.
Your energy class is A+
A+
A
B
C
D
E
F
G
H
Address: Чистопольская ул., 20а
City: Казань г.
Area: Ново-Савиновский
Country: Россия
Open In Google Maps Property Id : 248308
Price: 648.800 р.
Property Size: 324.40
с/уthrooms: 5
Energy class: A+
Контакты
Similar Listings
коммерческая, 50 лет Победы проспект, 22, ли...
112.000 р.
Первая линия, трафик Сдается помещение свободного назначения на первой линии. Панорамное о ...
Первая линия, трафик Сдается помещение свободного назначения на первой линии. Панорамное остекление делает заметнее ...
коммерческая, Советская ул.
140.000.000 р.
Готовый бизнес Вашему вниманию предлагается упакованный Готовый Арендный Бизнес Общая инфо ...
Готовый бизнес Вашему вниманию предлагается упакованный Готовый Арендный Бизнес Общая информация: 2 отдельно-стоящи ...
коммерческая, Баки Урманче ул., 7
84.000.000 р.
Вашему вниманию предлагается просторное коммерческое помещение площадью 536,7 кв.м. в топо ...
Вашему вниманию предлагается просторное коммерческое помещение площадью 536,7 кв.м. в топовой локации на 1 линии по ...
536.70 details











