Об объекте
- Обновлено:
- 28 декабря, 2025
-
- 43.20
- 1 с/уthrooms
-
- требует ремонта
-
- 1 этаж из 19
О доме
-
- «Счастье в Казани»
-
- Кирпично-монолитный
-
- Дом 2026 г.
-
- Потолки 4 м
-
- Этажность 19
-
- Паркинг
-
- Центральное
Описание
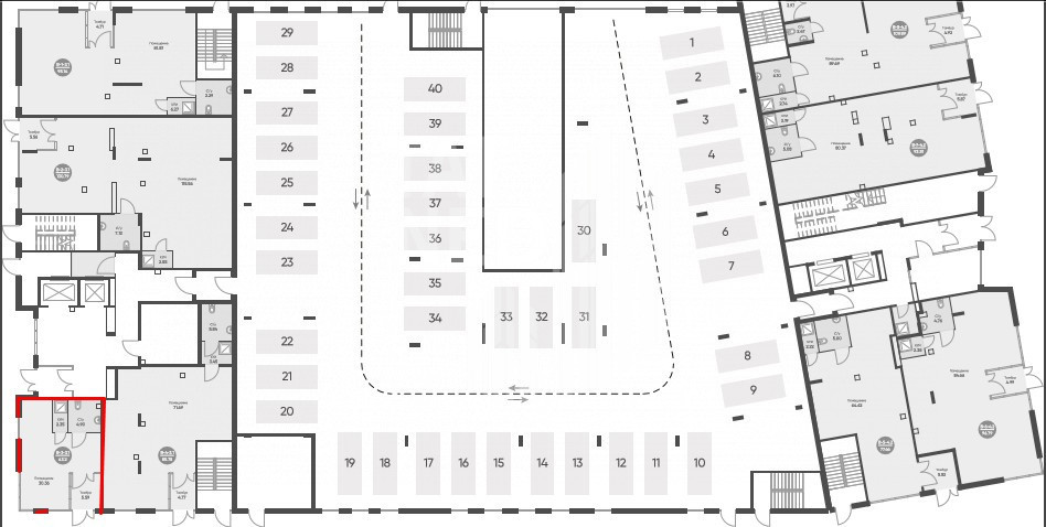
Переуступка. 2 очередь.
Помещение расположилось прямо на углу прогулочного бульвара, ваше помещение не остается не замеченным.
Преимущества помещения:
- планируемый МАП – +/- 3000 т.р. за 1 кв.м.
- 1 этаж, доступ 24/7
- сдача дома 2 кв. 2026 год
- высокий метраж потолков 4.3 м
- Панорамное остекление (большое количество окон)
- Место под вывеску
- Универсальное площадь (меньше площадей нет) -востребованность среди потенциальных арендаторов.
- вентиляция ( шахта отдельно от квартир)
- Помещение расположилось лицом к 1 очереди, 3 и паркингу.
- Прогнозируемая численность ЖК более 2500+ тыс чел.
- Проект будет завершен в 2027 году
- Отличная инвестиция в ЖК Бизнес Класса (стабильный рост)
ВАЖНО: переуступка возможна в офисе застройщика, стоимость услуг переуступки уточнять на момент появления интереса. Рассрочка по данному объекту выплачена, долгов перед застройщиком не имеется.
Если остались вопросы или предложения, звоните!
Your energy class is A+
A+
A
B
C
D
E
F
G
H
Address: Гаврилова ул., 7, к 1
City: Казань г.
Area: Ново-Савиновский
Country: Россия
Open In Google Maps Property Id : 257044
Price: 21.000.000 р.
Property Size: 43.20
с/уthrooms: 1
Energy class: A+
Контакты
Similar Listings
коммерческая, Созидателей проезд, 13
100.080 р.
Помещение с ремонтом Сдается помещение свободного назначения. Ремонт. 15 кВт. Три кабинета ...
Помещение с ремонтом Сдается помещение свободного назначения. Ремонт. 15 кВт. Три кабинета с окнами. Две мокрой точ ...
55.00 details
1k коммерческая, Магистральная ул., 37
255.000 р.
510 кв.м., на первой линии. Сдается помещение свободного назначения от 255-510 кв.м. Идеал ...
510 кв.м., на первой линии. Сдается помещение свободного назначения от 255-510 кв.м. Идеально подходит под магазин ...
1k коммерческая, Родины ул., 43
144.000 р.
Помещение с НДС. Сдается помещение на первой линии. Помещение в Советском районе по улице ...
Помещение с НДС. Сдается помещение на первой линии. Помещение в Советском районе по улице Родина 43. Отдельно стоящ ...
80.00 details




