Об объекте
- Обновлено:
- 30 октября, 2025
-
- 88.28
-
- требует ремонта
-
- 1 этаж из 10
О доме
-
- Квартал Сюита
-
- Кирпично-монолитный
-
- Дом 2026 г.
-
- Потолки 6 м
-
- Этажность 10
-
- Паркинг
Описание
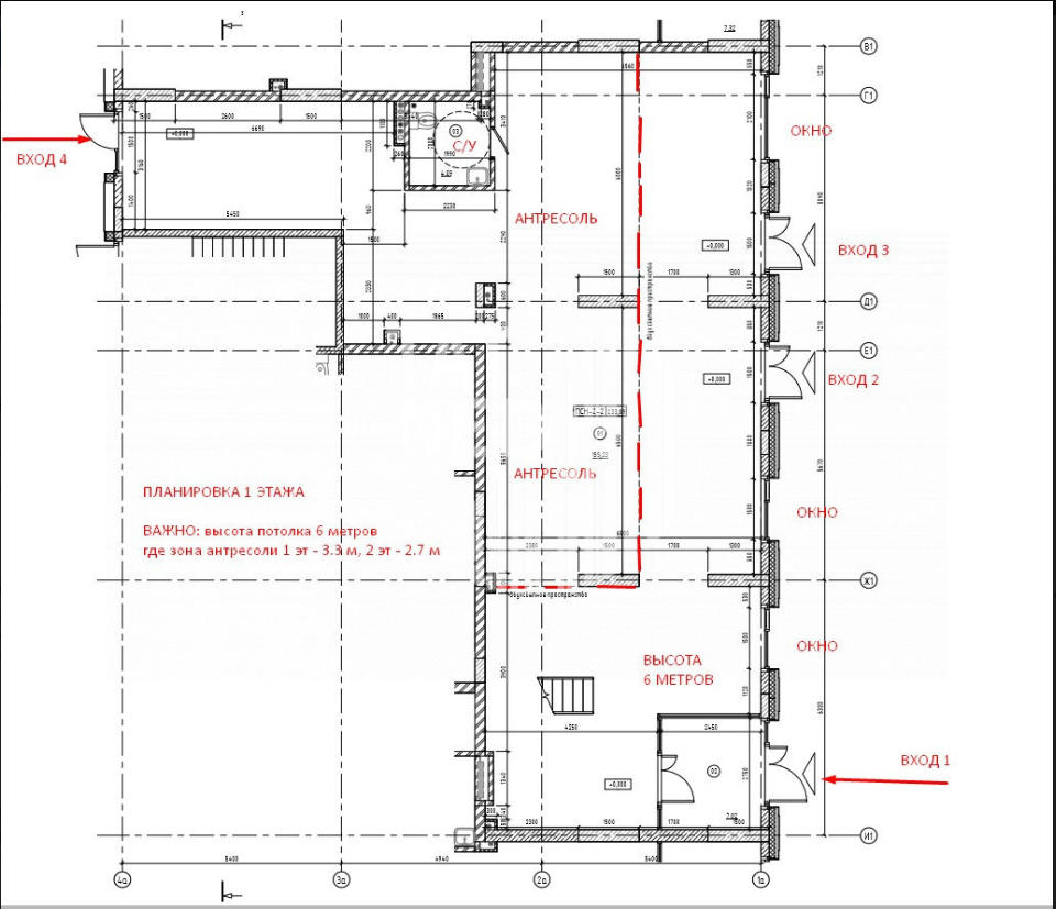
1 линия, 1 этаж ПСН
Вашему вниманию предлагается помещение от СОБСТВЕННИКА!
Вахитовский район, ул. Шаляпина, ЖК Квартал Сюита 2 очередь
Темпы строительства идут согласно плану, объект уже имеет потенциального арендатора – в виде региональной сети. ( формат кофейни)
срок сдачи 1 кв. 2026 г.
Преимущества помещения:
- 1 этаж, 1 линия
- 6 метров потолки
- 2-е входные группы
- Окна в пол
- Антресоль, которая идеально разграничивает основную зону с вторым светом
- Мощность 8 кВт
- Доступ 24/7
Есть индивидуальные условия выхода на сделку! Рассрочка, кэш.
Рассмотрим различный формат оплаты.
Звоните пишите, есть ВИДЕООБЗОР на момент май 2025 г.
Your energy class is A+
A+
A
B
C
D
E
F
G
H
Property Id : 237638
Price: 55.500.000 р.
Property Size: 88.28
Energy class: A+
Контакты
Similar Listings
коммерческая, Академика Завойского ул., 21б,...
39.900.000 р.
Окупаемость объекта 7 лет ГАБ Продаётся Готовый Арендный Бизнес! ГАБ Советский район, ул. ...
Окупаемость объекта 7 лет ГАБ Продаётся Готовый Арендный Бизнес! ГАБ Советский район, ул. Академика Завойского 21б, ...
коммерческая, Горького ул., 1/54
150.000 р.
Здание под ваш бизнес 24/7 Вашему вниманию предлагается отдельно стоящее здание в центре г ...
Здание под ваш бизнес 24/7 Вашему вниманию предлагается отдельно стоящее здание в центре г. Казань Пoмещeние свобод ...
коммерческая, им. Филатова ул., 19, к 1
7.000.000 р.
ПЕРСПЕКТИВНОЕ ПОМЕЩЕНИЕ 82.6 м² ПЕРСПЕКТИВНОЕ ПОМЕЩЕНИЕ 82.6 м² | Цоколь с высокими потолк ...
ПЕРСПЕКТИВНОЕ ПОМЕЩЕНИЕ 82.6 м² ПЕРСПЕКТИВНОЕ ПОМЕЩЕНИЕ 82.6 м² | Цоколь с высокими потолками 2.95 м | Огромный тра ...
82.60 details




