Об объекте
- Обновлено:
- 5 марта, 2026
-
- 268.00
- 2 с/уthrooms
-
- косметический
-
- 1 этаж из 1
О доме
-
- Кирпичный
-
- Дом 1969 г.
-
- Потолки 3.39 м
-
- Этажность 1
-
- Паркинг
-
- Центральное
Описание
ГАБ с хорош окупаем 1 линия ОСЗ
Вашему вниманию предлагается ГАБ с хорошей окупаемостью.
МАП за последний месяц, показатель 225 тыс руб!!!
Преимущества объекта:
- Здание расположилось в трафиком месте (высокий автомобильный и пешеходный трафик)
- деловой центр города
- Доступ 24/7
- Сетевой арендатор с хорошей репутацией на рынке. Долгосрочная аренда
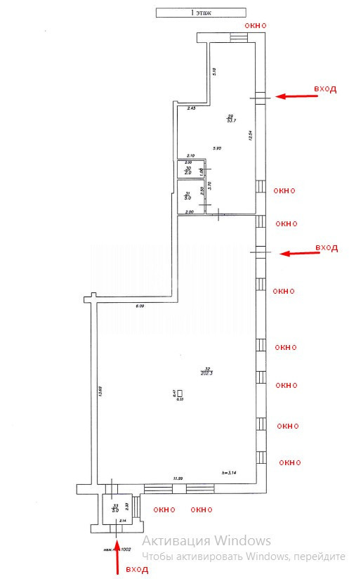
- Большое количество окон и входных групп ( планировку прикрепляю)
- Место под вывеску
- Дебаркадер, место выгрузки товара (фото)
- % с РТО, ежегодно этот показатель прирастает.
- Быстрый выход на сделку. ЗУ в собственности. (общедолевая)
Есть ВИДЕООБЗОР, звоните пишите.
Your energy class is A+
A+
A
B
C
D
E
F
G
H
Property Id : 265101
Price: 16.000.000 р.
Property Size: 268.00
с/уthrooms: 2
Energy class: A+
Контакты
Similar Listings
1k коммерческая, Родины ул., 43
162.000 р.
Торговые помещения на первой лин. Сдается помещение на первой линии . 13, 60, 80, 90, 110, ...
Торговые помещения на первой лин. Сдается помещение на первой линии . 13, 60, 80, 90, 110, 130, 205, 300, 450 кв.м. ...
90.00 details
1k коммерческая, Владимира Кулагина ул., 3
7.600.000 р.
Продается помещение свободного назначения с НДС. Помещение с арендатором ,доход 56000 тыся ...
Продается помещение свободного назначения с НДС. Помещение с арендатором ,доход 56000 тысяч +ком.услуги. Обновленны ...
43.40 details
1k коммерческая, Тэцевская ул., 201
2.520.000 р.
Склад с НДС Аренда складского комплекса. отличная локация в Авиастроительном районе. остан ...
Склад с НДС Аренда складского комплекса. отличная локация в Авиастроительном районе. остановка общественного трансп ...
2.800.00 details




