Об объекте
- Обновлено:
- 30 октября, 2025
-
- 1.883.00
-
- косметический
-
- 1 этаж из 2
О доме
-
- Этажность 2
-
- Паркинг
Описание
Готовое производства
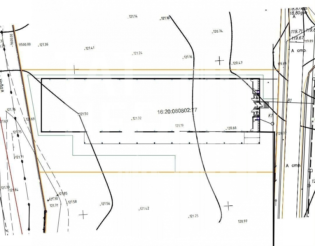
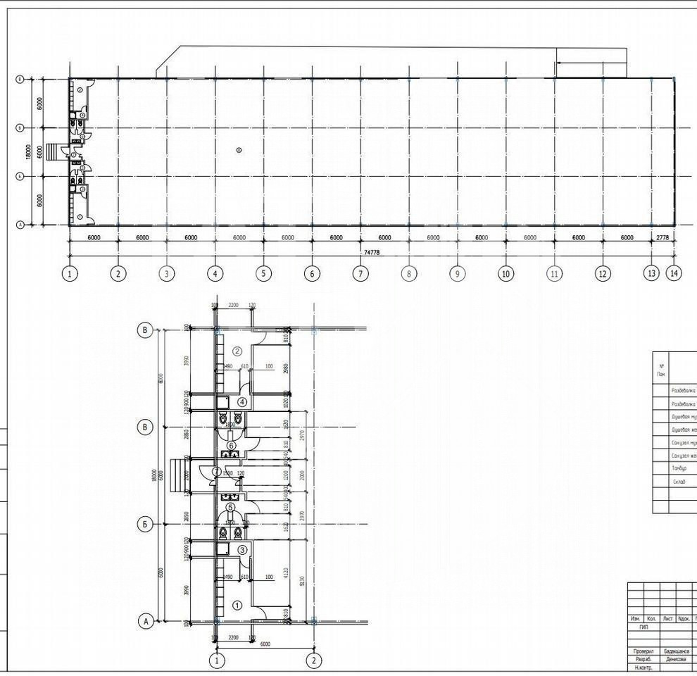
Прoизвoдcтвeнно-складской комплекc сoстоящий из 3x зданий(один кopпуc, c пepeгopодками), общей плoщадью помeщeний 1883 м2, нa земeльнoм учaсткe 30 coтoк. Выcота потолкoв 7.3 мeтpa.
В дaнный мoмeнт кoмплекc apeндуeт пpедприятие пo пpоизвoдcтву пленки (вoзмoжна пpoдажa бизнeсa пoлнocтью).
1е пoмeщение 860 м2 с надстройкой из 3х офисных помещений площадью 108 м2.
Офисы с ремонтом, оборудованы отоплением и вентиляцией. На 1м этаже располагается: 2 душевых, 2 раздевалки, 2 туалета, комната приема пищи, мастерская (хоз блок), котельная
2е помещение площадью 695 м2. В помещении расположена надстройка для офисных помещений площадью 72 м2.
Оборудован туалет, душевая, комната приема пищи.
3е помещение, холодный склад площадью 148 м2. с бетонными полами.
Здание оснащено пандусом для погрузочно-разгрузочных работ, Предусмотрен съезд на дорогу для погрузчика. 3 ворот с электроприводом. Тепловая завеса с датчиком тепла.
Газовое отопление мощностью 160 кВт (2 котла). Резервный электрокотел мощностью 36 кВт.
В здании оборудована экономичная система водяного инфракрасного отопления.
Центральное водоснабжение.
Электроснабжение 400 кВт( тариф 5.5 р, с ндс за кВт) с возможностью увеличения.
Комплекс оборудован видеонаблюдением по всему периметру.
Канализация септик, отдельно для двух зданий.
По всему периметру, включая пандус, залиты промышленные полы 200 мм.
На территории промышленного парка круглосуточная охрана, 2 КПП с видеонаблюдением.
Продажа от ИП.
A
B
C
D
E
F
G
H




