Об объекте
- Обновлено:
- 27 апреля, 2026
-
- 142.00
-
- 4-к
-
- требует ремонта
О доме
-
- Кирпичный
-
- Этажность 1
-
- Котел газ
Описание
Продажа на прямую от ЗАСТРОЙЩИКА.
Цена дома указана с учетом участка 10 соток в КП Гринвуд Сокуры.
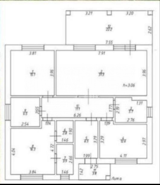
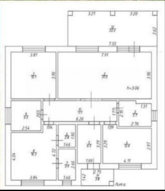
Дом одноэтажный 142 квм в предчистовой отделке.
Удобная планировка дома для комфортного проживания. Планировка прилагается: кухня-гостинная, хол, котельная, санузел, 3 спальни, входная группа, крыльцо. По всему дому теплые полы. Проведено отопление, установлены радиаторы, газовый котел. Сдается со всеми подключенными коммуникациями: газ, свет, вода (своя скважина), канализация.
Дом соответствует всем стандартам СНиП и ГОСТ.
Проходит по программам: Семейная ипотека, сельская ипотека, Гос.поддержка.
Можем организовать просмотр ежедневно 7 дней в неделю. Покажем все готовые дома, расскажем о строящихся.
Гарантия 5 лет от застройщика.
Звоните прямо сейчас и откройте двери в ваше новое будущее.
A
B
C
D
E
F
G
H




